Trilocale in vendita

Roma, Via Gosio - Fleming
€ 370.000
3 locali 3 locali
59 Mq 59 Mq
1 bagno 1 bagno

Trilocale in vendita

Roma, Via Gosio - Fleming

Descrizione annuncio

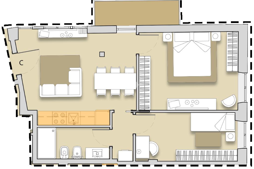
TECNOCASA FLEMING VIGNA CLARA propone in vendita un esclusivo eco-immobile Immoveo di nuova realizzazione, completamente ridisegnato e ristrutturato con l'utilizzo di materiali atossici e naturali. Internamente composto da ingresso, soggiorno con cucina a vista, camera matrimoniale,cameretta, bagno. Completa la proprietà un balcone abitabile per due. Possibilità di box auto e cantina apparte.

Fleming è tra le zone residenziali più prestigiose di Roma. Si trova nel quadrante nord-ovest della città ed è caratterizzato da eleganti palazzi e villini. La posizione rialzata e strategica offre un facile accesso al centro storico di Roma e altre parti della città , anche grazie alla vicinanza con Ponte Milvio, Corso di Francia, Via Flaminia e Vigna Clara.

Il prestigio e l’alta domanda di immobili in questa zona potrebbero garantire un apprezzamento del valore nel tempo.

Materiali e Forniture

Aria condizionata con funzionalità caldo/freddo; gli ambienti giorno/notte sono climatizzati separatamente;Infissi a bassa trasmissività con apertura a vasistas per il ricircolo dell’aria ed ottimo confort acustico;Isolamento termo/acustico pareti esterne e confinanti;Portoncino di ingresso blindato con cilindro europeo;Cucina completa di elettrodomestici: piano cottura ceramico, frigo con congelatore, lavatrice, lavapiatti e cappa aspirante;Rubinetteria con cartucce ceramiche e sanitaria basso consumo di acqua;Bagni completi di piano lavabo, cassettiere e box doccia;Impianti idrici con chiusure centralizzate;Pavimento in parquet in Rovere naturale(escluso bagno);Gres porcellanato in pasta con altissima resistenza all’usura;Illuminazione led controllata mediante domotica e tagli di luce dedicati;Prese USB a parete;Tapparelle coibentate elettriche;Pittura anti-inquinamento per il miglioramento della qualità dell’aria;Garanzia due anni sugli impianti;Libro Casa Immoveo;Immobile con forme alla Direttiva Europea «CASEGREEN»;ECOIMMOBILE Pronto da abitare

NELLE CASE DI IMMOVEO SI USANO MATERIALI A “KM ZERO”

Nel ciclo produttivo e nella scelta dei materiali siamo attenti anche ai consumi per il loro trasporto: nello stesso modo in cui preferiamo che i cibi sulla nostra tavola siano a “km zero”, così facciamo per i materiali di ristrutturazione. In questo modo limiteremo le emissioni di carboni o legate al loro trasporto e la preparazione della vostra nuova casa avrà un minor “Carbon Foot print” riducendo l’impatto sul clima globale.

Mostra tutto

Nelle vicinanze

Trasporto pubblico Trasporto pubblico
Vigna Clara
Vigna Clara
1,1 Km
Acqua Acetosa
Acqua Acetosa
1,5 Km
Tiziano/XVII Olimpiade
Tiziano/XVII Olimpiade
920 m
Pinturicchio
Pinturicchio
940 m
C.so Francia/Flaminia
C.so Francia/Flaminia
200 m
Ricariche auto elettriche Ricariche auto elettriche
Roma Palazzetto Dello Sport | EnelX
1,1 Km
Roma Mancini | EnelX
1,3 Km
Roma Due Ponti Sporting Club | EnelX
2,2 Km
Roma Facoltà di Architettura | EnelX
2,4 Km
Hilton Garden Inn Rome Claridge
2,6 Km
Scuole Scuole
Scuole
160 m
Istituto scolastico Gesù-Maria
600 m
Istituto Aurelia Fevola
650 m
Università degli Studi di Roma "Foro Italico"
800 m
Scuola Nazionale dell'Amministrazione
830 m
Farmacia Farmacia
Bevagna
400 m
Farmacia Ponte Milvio
670 m
Farmacia Rallo
740 m
Farmacia Pugnaloni
940 m
Farmacia
980 m
Ospedali Ospedali
Ospedali
330 m
Onlus Fondazione Don Carlo Gnocchi
890 m
Nuova Villa Claudia Casa di Cura convenzionata
1,4 Km
Clinica Mater Dei
2,1 Km
Clinica Parioli
2,2 Km
Supermercati Supermercati
Conad
290 m
Punto Simply
350 m
Tuodì
500 m
Carrefour
540 m
GS Via Germania
610 m
Negozi Negozi
Panificio Nazzareno
580 m
Merceria GA.N.TEX
760 m
Alimentari
930 m
L'isola celiaca
1,0 Km
Negozi
1,0 Km
Bar Bar
L' Altro Chiosco
600 m
Punto Bar
1,5 Km
Profumo Spazio Sensoriale
1,6 Km
Grande Black
1,6 Km
Carrot's Cafè
1,6 Km
Ristoranti Ristoranti
Sublime - La villa
100 m
Me Spectacular Restaurant
110 m
La Villa Roma
150 m
L'Ortica
280 m
Lievito
290 m
Mostra tutto

Caratteristiche

Rif.:
61186514
Piano:
2 di 5 con ascensore (Piano medio)
Balconi:
1
Camere da letto:
2
Arredamento:
Assente
Condizionamento:
Autonomo
Mostra tutto
Prezzo Prezzo
€ 370.000
Rata mutuo Rata mutuo
€ 1.728 / mese
Proponi il tuo prezzoProponi il tuo prezzo

Classe Energetica

C
C
C
C
C
C
C
C
C
EP globale non rinnovabile:
175.00 kW h/m² anno
EP globale rinnovabile:
175.00 kW h/m² anno
EP invernale del fabbricato:
EP estiva del fabbricato:
Anno di costruzione:
1970
Riscaldamento:
Autonomo
Tipo impianto:
A radiatori
Tipo alimentazione:
Metano

Ti interessa visionare l'immobile?

Fissa un appuntamento  Fissa un appuntamento

Richiedi informazioni

Clicca su Leggi per aprire l'informativa
* Questi campi sono obbligatori

Calcola il tuo mutuo

Semplice e senza impegno
Anticipo

( % )
Mutuo

( % )

pochi semplici passi

inserisci i tuoi dati
Questionario completato
Grazie per aver richiesto un appuntamento senza impegno con un nostro Consulente del Credito e Assicurativo.

Hai inserito correttamente tutti i dati necessari e a breve riceverai una e-mail con un link da convalidare per inviare i tuoi dati.
Affiliato
Immobiliare Fleming Vigna Clara Srl
Via Flaminia, 628 00191 Roma (RM)

Il nostro staff


  • Nicolò Catarinozzi
    Collaboratore

  • Petronilla Pastore
    Responsabile

  • Emanuele Ruotolo
    Responsabile

  • Ludovico Timolati
    Affiliato
Via Flaminia, 628 00191 Roma (RM)
Zona: Collina Fleming-Corso Francia-Vigna Clara
Mostra su mappa
Orari: lun-ven 09:30-13:00 e 15:00-19:30 | sab 09:30-13:00
Affiliato
Immobiliare Fleming Vigna Clara Srl
Via Flaminia, 628 00191 Roma (RM)

2026 Tecnocasa Franchising S.p.A. - P. IVA 08365160152 - Via Monte Bianco 60/A 20089 Rozzano (MI). Ogni agenzia ha un proprio titolare ed è autonoma. Privacy policy | Policy utilizzo | Cookie policy