Trilocale in affitto

Roma, Corso di francia - Fleming
€ 1.400 / mese
2 locali 2 locali
80 Mq 80 Mq
1 bagno 1 bagno

Trilocale in affitto

Roma, Corso di francia - Fleming

Descrizione annuncio

In una zona ottimamente collegata e ricca di servizi, la nostra agenzia propone in locazione un ampio bilocale in ottime condizioni.

L’appartamento si trova al piano terra di un elegante stabile situato nei pressi della rinomata area di Ponte Milvio, a pochi passi da fermate autobus con collegamenti diretti verso, Ponte Milvio, Termini, il Centro e i principali quartieri limitrofi.

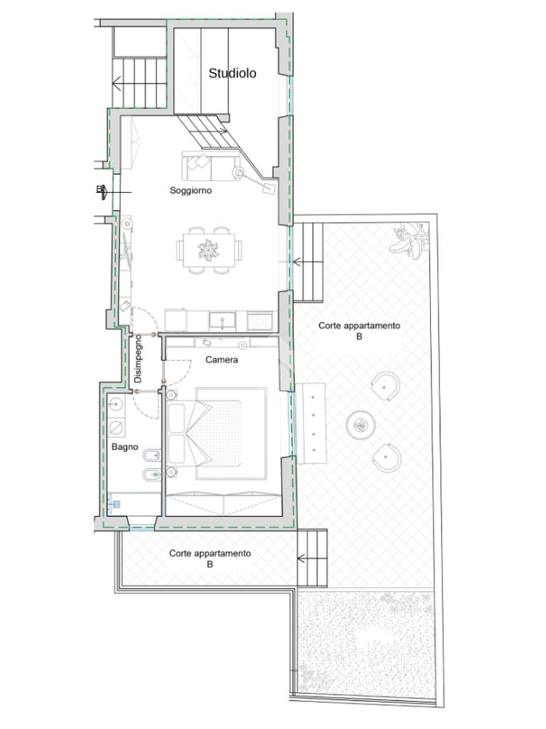
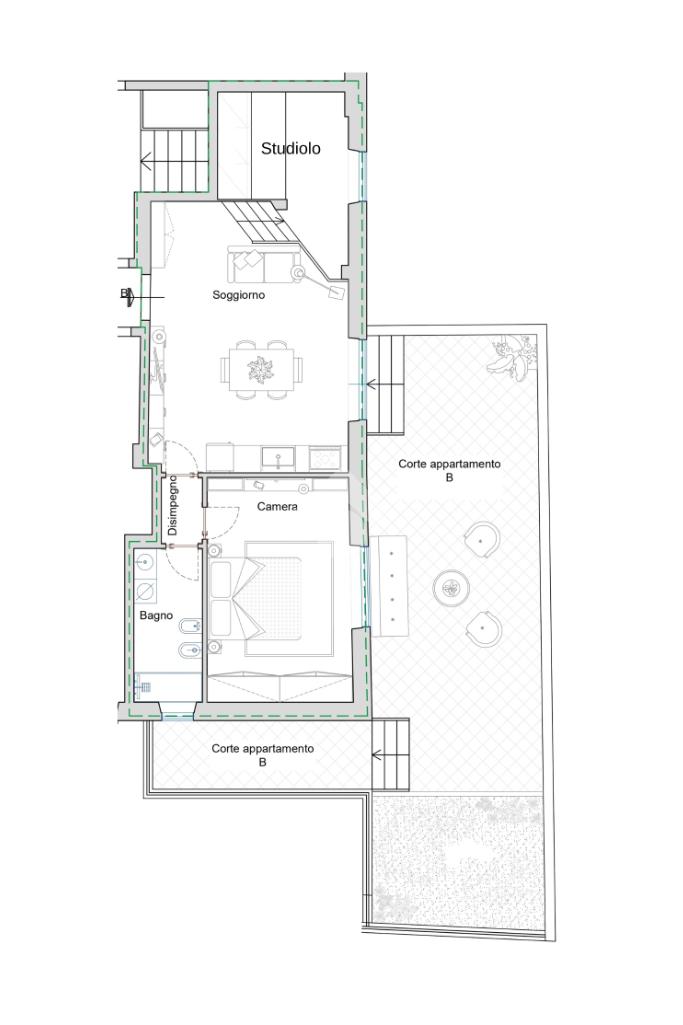
L’immobile dispone di una superficie interna di . 65 mq e di un terrazzo pavimentato di 70 mq, perfetto per trascorrere momenti di relax o per pranzi e cene all’aperto.

La distribuzione interna prevede:

ingresso,

ampio soggiorno con porta finestra sul terrazzo,

cucina a vista,

camera da letto matrimoniale,

studio,

ampio bagno finestrato.

Il riscaldamento è centralizzato, con predisposizione per aria condizionata.

La zona è servita da supermercati, farmacie, banche e da un gradevole parco pubblico, facilmente raggiungibili a piedi.

Grazie alla posizione strategica, alla vicinanza allo stadio e alla presenza di ristoranti e locali commerciali, l’immobile rappresenta una soluzione ideale per chi desidera vivere in un contesto vivace e ben collegato con il centro.

Mostra tutto

Nelle vicinanze

Trasporto pubblico Trasporto pubblico
Vigna Clara
Vigna Clara
380 m
Tor di Quinto
Tor di Quinto
1,8 Km
Pinturicchio
Pinturicchio
1,5 Km
Tiziano/XVII Olimpiade
Tiziano/XVII Olimpiade
1,6 Km
C.so Francia/Vigna Stelluti
C.so Francia/Vigna Stelluti
30 m
Ricariche auto elettriche Ricariche auto elettriche
Roma Due Ponti Sporting Club | EnelX
1,6 Km
Roma Mancini | EnelX
1,8 Km
Roma Palazzetto Dello Sport | EnelX
1,9 Km
Scuole Scuole
Istituto scolastico Gesù-Maria
310 m
Scuole
690 m
IC Goffredo Petrassi
820 m
Istituto Aurelia Fevola
1,0 Km
Scuola Nazionale dell'Amministrazione
1,1 Km
Farmacia Farmacia
Farmacia Rallo
350 m
Farmacia Pugnaloni
560 m
Bevagna
560 m
Farmacia Ponte Milvio
1,0 Km
Farmacia
1,6 Km
Ospedali Ospedali
Ospedali
650 m
Nuova Villa Claudia Casa di Cura convenzionata
800 m
Onlus Fondazione Don Carlo Gnocchi
1,0 Km
Ospedale San Pietro Fatebenefratelli
2,5 Km
Villa Stuart
2,6 Km
Supermercati Supermercati
Carrefour
430 m
Tuodì
490 m
Conad
520 m
Punto Simply
890 m
Coop
940 m
Negozi Negozi
Merceria GA.N.TEX
420 m
Panificio Nazzareno
1,0 Km
Supermercato
1,1 Km
Roma Golf Center
1,3 Km
Alimentari
1,5 Km
Bar Bar
Profumo Spazio Sensoriale
820 m
L' Altro Chiosco
1,1 Km
Il Bosco delle Fragole
2,0 Km
Chalet nel Bosco
2,0 Km
Punto Bar
2,0 Km
Ristoranti Ristoranti
aRoma Hostaria
430 m
Natalino e Maurizio
510 m
L'Ortica
520 m
T-Bone Station
530 m
Lievito
550 m
Mostra tutto

Caratteristiche

Rif.:
61159249
Piano:
1 di 5 con ascensore (Piano rialzato)
Terrazzi:
1
Camere da letto:
1
Arredamento:
Assente
Condizionamento:
Predisposizione impianto
Mostra tutto
Prezzo Prezzo
€ 1.400 / mese
Spese annue Spese annue
€ 720

Classe Energetica

F
F
F
F
F
F
F
F
F
EP globale non rinnovabile:
175.00 kW h/m² anno
EP globale rinnovabile:
175.00 kW h/m² anno
EP invernale del fabbricato:
EP estiva del fabbricato:
Anno di costruzione:
1970
Riscaldamento:
Centralizzato
Tipo impianto:
A radiatori
Tipo alimentazione:
Metano

Ti interessa visionare l'immobile?

Fissa un appuntamento  Fissa un appuntamento

Richiedi informazioni

Clicca su Leggi per aprire l'informativa
* Questi campi sono obbligatori
Affiliato
Immobiliare Fleming Vigna Clara Srl
Via Flaminia, 628 00191 Roma (RM)

Il nostro staff


  • Nicolò Catarinozzi
    Collaboratore

  • Petronilla Pastore
    Responsabile

  • Emanuele Ruotolo
    Responsabile

  • Ludovico Timolati
    Affiliato
Via Flaminia, 628 00191 Roma (RM)
Zona: Collina Fleming-Corso Francia-Vigna Clara
Mostra su mappa
Orari: lun-ven 09:30-13:00 e 15:00-19:30 | sab 09:30-13:00
Affiliato
Immobiliare Fleming Vigna Clara Srl
Via Flaminia, 628 00191 Roma (RM)

2026 Tecnocasa Franchising S.p.A. - P. IVA 08365160152 - Via Monte Bianco 60/A 20089 Rozzano (MI). Ogni agenzia ha un proprio titolare ed è autonoma. Privacy policy | Policy utilizzo | Cookie policy